St Clair

Deep Value In Compact Clarity

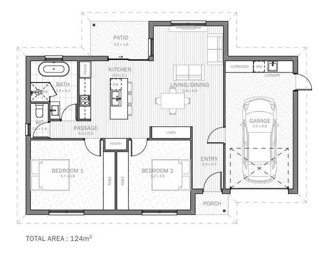
Total area 116m²

Affordable Home ST CLAIR

St Clair is a smart unit-sized home designed to ensure your money lasts longer, making it the perfect choice for investment or efficient retirement. With a layout that optimises living and privacy at the rear, St Clair delivers confidence, comfort and stability for your next life stage.

Deep Value Investment: Perfectly sized for downsizing or maximising investment returns, featuring two bedrooms and open living.
Gorgeous Appeal: Street presence with living privacy pri0ritised at the back
Block Versatility: Ideal for wider, shallow blocks or internal spaces

Lake St Clair is known as the deepest lake in Australia, famous for its clarity and enduring natural beauty. It inspires a compact design with surface appeal and deep lasting value.

View Other Signature Series