Derwent

A Smart, Compact Entry To Value

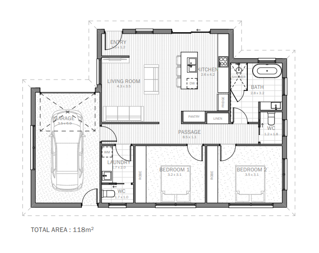
Total area 118m²

Affordable Home DERWENT

The Derwent is designed to be your ultimate value investment – a perfect unit-sized house that delivers big on features with a highly efficient 118m2 footprint. This plan is all about clever efficiency and maximum light, offering a striking wide frontage that suits both internal lots and wider shallow blocks. With two generous bedrooms and a smart combined living space, the Derwent proves that achieving quality home ownership can be simple, affordable and stress-free.

  • Ultimate Value Investment: Compat 118m2 home, perfectly sized for entry to housing market or smart rental.
  • Striking Presence: Vast frontage maximising appeal for internal/wider blocks.
  • Essential Functionality: Open-plan living, plus an internal laundry and second toilet.

The Derwent River is the biggest entry point to the state, foundational to the capital! It inspires a compact design that offers an entry point to stability and value.

View Other Signature Series