Inglis

Meet the Inglis – a modern entertainer built for real life

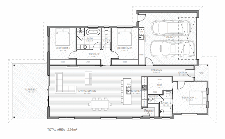
Total area 198m²

Affordable Home INGLIS

The Inglis is a beautifully proportioned 198m2 home designed for modern living without the budget worries. This plan combines the permanence of a solid brick base with the contemporary flair of a feature facade. Built around seamless flow, a highly functional kitchen, and a generous extended alfresco area. The Inglis is where dependable quality meets everyday elegance.

  • Durable & Modern: Robust solid brick base complemented by modern feature clad facade
  • Integrated Living: Perfect flow between all areas, anchored by a practical WIP
  • Privacy & Entertaining: Separated master suite and a generous extended alfresco.
  • Smart Convenience: Large dedicated laundry space and double garage with backyard access

The Inglis River is a prominent and dependable river on Tasmania’s North West Coast, flowing consistently through rich farmlands to the sea. It inspires a home design that is true to quality and local relaibility.

View Other Signature Series