Burbury

Style, character and practicality in perfect balance

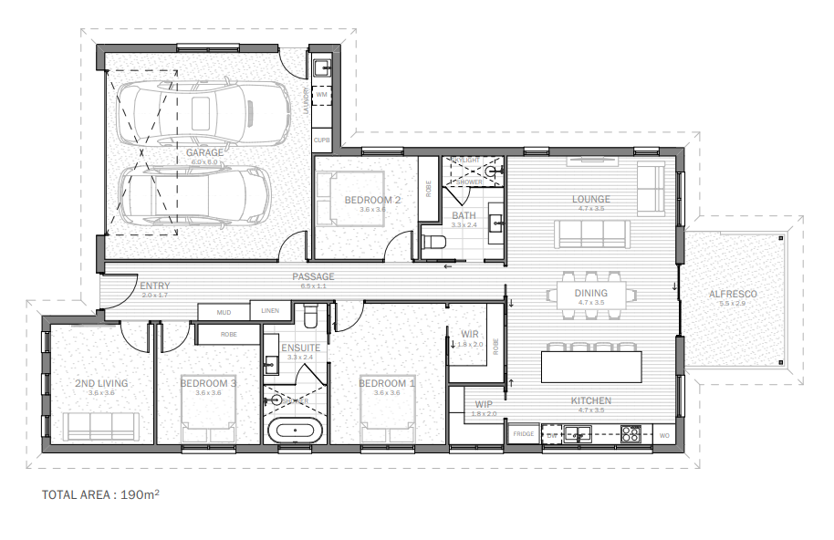
Total area 178m²

Affordable Home BURBURY

The Burbury is the perfect home to prove you don’t need a huge footprint to have real heart and character. Modest in size, big on heart – this hme is balanced, combining style, character and practicality for modern family life. Its’ smart 178m2 floorplan maximises every inch, delivering quality craftsmanship, comfort and powerful value without the stress.

  • Balanced Design: Perfectly blends style, character, and practicality for real-life demands
  • Dual Flexibility: Includes 2 dedicated living spaces within an efficient 178m2 layout
  • Seamless Entertaining: Open living area flows directly to covered alfresco space
  • Maximised Value: Quality craftsmanship delivering superior comfort and affordability

Lake Burbury is a large, established reservoir on the West Coast, known for its enduring structure and contribution to a reliable power source. It inspires a home design that is stable, practical and built for real life.

View Other Signature Series