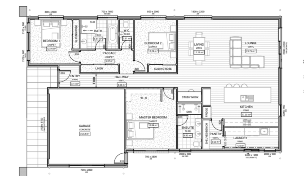
215 - Ruby $520,000

Total area 215m²

home builder ruby

Ruby offers something different with her bold facade and arched windows. Ruby features open plan living area, with a generous walk-in pantry and laundry space, and a large master bedroom with built in robe.The main hallway provides separation to the second and third bedrooms, and bathroom including separate toilet.

Choose the Ruby pre-priced plan at $520,000 with the inclusions below, or make Ruby your own by choosing your appliances, fittings and fixtures, colorbond roof and brick style and colour. Our selections booklet allows you to customise your dream home to suit your style.

home builder design ruby

What Our Customers Are Saying

Google Reviews
Rated 5 out of 5

DOWNLOAD NOW

Platinum Pro Plans & Pricing Guide

Discover how we deliver a transparent, collaborative, and stress-free building journey that brings your dream home to life.

Why Platinum Pro Construction is Your Perfect Choice?

value for money

Value for Money

We focus on delivering exceptional-quality homes that maximise value while staying within your budget. Every detail is designed with precision and care to ensure long-term satisfaction.

high level of communication

High Level of Communication

We believe in keeping you informed every step of the way. Our team prioritises clear, frequent communication to ensure you feel confident and supported throughout your project.

local expertise

Local Expertise

As a Tasmania-owned business, we deeply understand the unique needs of our local communities. From materials to council regulations, we’ve got you covered.

customisable solutions

Customisable Solutions

Your home should reflect your vision. We work closely with you to customise every aspect of the design, from layout to finishes, creating a space that is truly yours.

transparent process

Transparent Process

Our step-by-step approach ensures a stress-free experience. With clear milestones and updates, you’ll always know where your project stands.

reliable craftmanship

Reliable Craftsmanship

With over 200 homes successfully completed, we bring proven experience and dedication to every build. You can trust us to deliver a home built to the highest standards.

Let’s Bring Your Vision to Life

Let’s Bring Your Vision to Life

Ready to Begin Your Dream Home Journey?

Take the first step towards your custom-designed home with Platinum Pro Construction. Our expert team is here to guide you from concept to completion, ensuring a seamless and enjoyable building experience tailored to your needs and budget.

Google Reviews from Our Clients

Friendly team delivering smooth and stress free builds

One of the highlights of our experience was the face to face meetings. Our initial consultation with Michael was fantastic, and Brooke was always so approachable and easy to communicate with. No question ever felt like too much trouble, and everything was answered clearly and promptly. The service and recommendations from Deloraine Flooring were outstanding. We absolutely love our bathroom, and without their guidance it simply wouldn’t be what it is today. DBS were also incredible, Caitlin prepared our quote and offered thoughtful recommendations that suited both our needs and our budget, which we really appreciated. The Platinum Pro team were consistently friendly and helpful, making the whole build process feel smooth and stress free. Our construction manager was efficient, approachable, and excellent at explaining things in plain, easy to understand terms.

Emma Richardson

Stress free build with outstanding communication team

Overall experience. The standout part of the experience was the people. For the most part communication flowed freely and we felt in touch with the build and staff. Every interaction and communication was positive and respectful. Communication was open and I always felt I could reach out with any concern. When I did reach out I felt heard and warmly received. I simply couldn’t fault Platinum Pro staff. You really do take care of the administration, coordination, and management of the whole process. I can honestly say it was pretty much stress free, we enjoyed the process and would absolutely choose Platinum Pro to build again. You proved that building doesn’t have to be a nightmare or stressful experience. Mitch. Oh my gosh. We felt we must have struck lucky to get Mitch as our construction manager. We cannot speak highly enough of him. At our first walkthrough at the framing stage we felt like he was welcoming us into his own home. We could see his pride in his workmanship and he had good reason to be proud. The way the whole project was managed was outstanding. Mitch was onto every aspect of the build. The site was kept clean and tidy, he thought of all the big and little details. He was brilliant at communicating with us and made accessibility easy. I think Mitch was a huge part of what made our build stress free. Whatever potentially could have been stressful was dealt with by Mitch. Thank you Mitch. Brooke. Where do I start. Brooke was the one who sold us on Platinum Pro in the first place. What an outstanding representative of the company. She never disappoints and did what she said she would do right to the very end. My one build crisis she managed like a champion and helped me sort it brilliantly. I will miss the connection and communication once it’s complete. For a good 18 months Brooke has been a part of our lives and shared a very special and personal journey with us. Thank you Brooke, from the bottom of our hearts.

Evelyn Williams

High quality craftsmanship with excellent customer service

I am very satisfied with my building experience. From start to finish, the process felt well managed and professional, and I always had confidence that the final result would meet a high standard. The standout was the quality of workmanship and the genuine care taken in the details. Every stage showed that Platinum Pro takes pride in doing things properly, not just getting them done quickly. For me, Platinum Pro has been a fantastic builder to work with. You combine high quality craftsmanship with excellent customer service, and the whole process felt organised and transparent. Having a supportive team to explain options and guide decisions was something I hadn’t expected but made the process far less overwhelming. It made building my home much less stressful than I imagined, and the finished product speaks for itself. I would happily recommend Platinum Pro to anyone looking to build.

Ma Bowen

Professional and reliable partner for development projects

I have worked with Sam over the past 12 months on a number of developments. He has been excellent and professional to deal with. I highly recommend him.

Nick Brandsema

Caring team delivering beautiful high quality homes

Samuel and his team have been fantastic to deal with over the past couple of years. They take great care of their clients and deliver beautiful homes. Happy to recommend Platinum Pro to anyone.

Tom Tasker

Delivered on time with exceptional final result

Platinum Pro team and Sam worked wonders with our build. Not only was there a tight schedule the guys delivered on the day promised. The whole experience was easy with the help of Sam and his team, nothing was an issue and our home is amazing.

Rachel Von Bibra

Great first impression that secured our decision

We had planned to meet with multiple builders to find the right one originally, but after first meeting with Sam at Platinum Pro, we stopped looking. We had heard of Platinum Pro from friends and are glad we made the initial call.

Hamish Campbell

Welcoming team with honest and transparent communication

From our first meeting we felt like part of the Platinum Pro family, we were made to feel so welcome. So far we have had such a great transparent and honest relationship with Brooke.

Brett Muir

Seamless build process with open minded team

We can highly recommend Platinum Pro Builders. From beginning to end our house build was pretty much seamless. Our vision was a bit out of the ordinary but the Platinum Pro team were very open.

Ian Lomas

Ongoing support beyond initial build experience

Sam and the Platinum Pro team not only built us the best first house you could ever ask for, he has continued to be a professional and knowledgeable resource when we have dealt with him on other projects. He’s easy to communicate with.

Erica Jeffrey

High quality support and expert craftsmanship throughout

Extremely satisfied with the high quality of support, craftsmanship and knowledge everyone at Platinum Pro displayed to assist me in planning the house from the beginning to the end of development.

Olivia Michajlow

Professional team that truly understands client needs

Platinum Pro Construction would be my first choice to build a new home every time. The entire team are professional, approachable and take time to understand you and what you, as an individual, are looking for.

Mary Brumby

Competitive pricing with outstanding professionalism and results

Sam and the team at Platinum Pro Construction built our house for us, and we’re so pleased that we chose them for the job. After looking at other builders to do the job and given the hurdles involved with the build, their prices and professionalism stood out.

Travis Lee

Supportive team helping through difficult situations

Our journey with Sam and the team at PPC was somewhat different to most. We purchased our block in 2018 and decided to go with a local builder who was also family. Things went pear shaped and Sam, who had heard of our troubles, reached out to help.

Jacob Snare

Exceeded expectations on holiday home build

We purchased a block of land at Scamander and decided to build a holiday home. We approached Sam to see if he would be interested in building it for us. Sam and his team delivered beyond expectations.

Kaye Jeffrey

Smooth journey from first contact to build

Before building with Platinum Pro we rented and then lived with my parents after purchasing a block of land. Yvette was an old neighbour of mine when we were kids and we had seen Platinum Pro recently up and running, so we contacted Sam to start our journey.

Emily Chynoweth

Helpful guidance and flexibility in custom builds

Having approached Sam about one of his house and land packages nearing ready to be started, Sam was nothing but extremely helpful and upfront with the process. We were lucky to have signed before the starting stage allowing us to be able to customise our home.

Yasmin Sheehan

Professional team resolving issues quickly and smoothly

From start to finish Platinum Pro were always professional in their approach even if I disagreed with something. Everything was discussed and resolved quickly. The build was of high quality and the team were always helpful with any changes I needed.

Andy Wright

Consistent quality across multiple build projects

Platinum Pro Construction built a two unit duplex in 2018 for me. I could not have been happier, having built my first home and investment property. Moving forward to 2022, I had them build my first house. On both occasions, I found Sam and the team exceptional.

Aaron Cables

Affordable and professional first home experience

Thank you to Sam and the team for making the process of building our first home stress free, exciting, and affordable. We were very happy with the quality of work and professionalism.

Nathan Dick

Outstanding bathroom renovation and workmanship quality

Had our bathroom renovated last year. It is amazing, and the quality of workmanship was outstanding. Thanks, Nick. Appreciate your work.

Sheree Douce Wisniewski

Quality workmanship delivered on time and budget

Big thanks to Sam and his team for the completion of our Penguin units. Quality workmanship, easy to deal with, and job finished on time. Well done, everybody involved. We couldn’t be happier with the end result. Cheers, Tammy and Jason. PS Can’t wait to go again.

Jason Shepheard

First time build made easy and enjoyable

We can’t thank Sam and the team from Platinum Pro enough for building our beautiful new family home for us. We had never built before, and Sam was great to deal with from the first time we met to go over our plans right through to handing the keys over. Nothing was too much trouble, and the advice and guidance we received from Sam was fantastic. We would highly recommend Platinum Pro Constructions to anyone building. We could not be happier with our experience, and we love our new home. Alicia and Justin Frake.

Alicia Frake

Stress free build with excellent communication

We had the pleasure of Sam, Yvette, and the team of Platinum Pro Construction help us plan and build our dream home. Sam took care of all our planning and building permits to make the process even smoother and less stressful for us building our first home. Sam was contactable every day to answer all our questions and kept us in the loop with everything going on. Platinum Pro and the subcontractors used have all done an amazing job. We couldn’t be happier with the end result. Thank you, Sam, Yvette, and the team, for our amazing home.

Dominic Wing

Amazing home build with supportive team

A huge thank you to Sam and the guys at Platinum Pro. You have built an amazing family home for us, and we couldn’t be happier. Nothing was ever a problem, and you were always willing to take a moment to help us with any questions. We can’t recommend you enough. Thank you so much.

Tash Crowley

Professional communication and neighbour consideration

Haven’t built with Platinum Pro, but as a neighbour at their current building site I was very impressed receiving a letter notifying us of potential noise for pouring concrete and apologising for disturbances during this time. Never had this before being notified, well done Platinum Pro. Very professional.

Angelika Pyka

Respectful team with great community values

Was in Oliver’s Bakery Ulverstone on Thursday as a customer. Three young Platinum Pro construction workers came in. How nice to see that they took their boots off before coming into the bakery as they had red mud on them. They are to be commended for their respect.

Jos Read