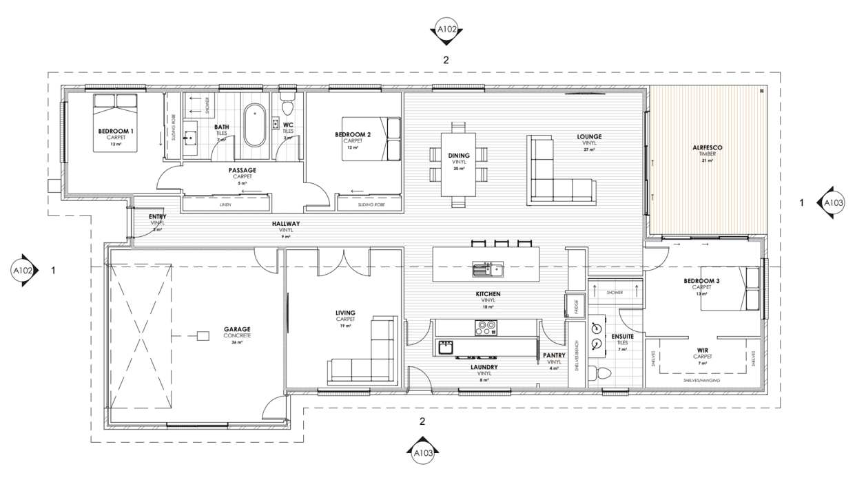
239 – Wilson

A design that adapts as your family grows and changes

Total area 239m²

home builder wilson

The largest of our three bedroom pre-planned homes, Wilson offers two spacious living areas, a large main bedroom with a double shower ensuite and walk-in robe, and separate bedrooms (that you can close off when the kids move out!).

The open-plan living area offers a double-entry pantry, a hidden laundry and plenty of storage. Wilson also provides another separate living area that can be closed off for movie nights.