227 – Blackburn

Blackburn makes modern living simple and inviting

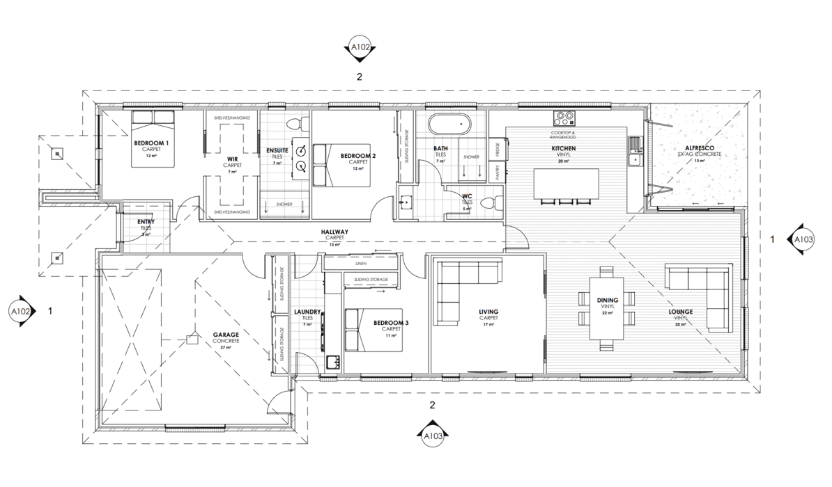
Total area 227m²

home builder blackburn

Our Blackburn design features two spacious living areas, three bedrooms (the master with a walk-in-robe and double vanity ensuite), a large kitchen, a separate laundry, garage storage and a large alfresco area for entertaining (or relaxing!).

As well as selecting all your fixtures and finishes, you can make it truly your own by selecting your colorbond roof colour, brick veneer colour and style and make it extra toasty in winter with double glazed windows and sliding doors.