215 – Ruby $520,000

Ruby brings modern living with a unique edge

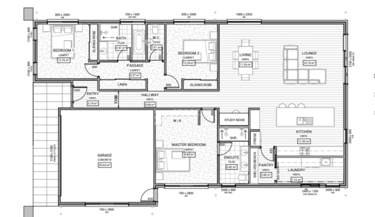
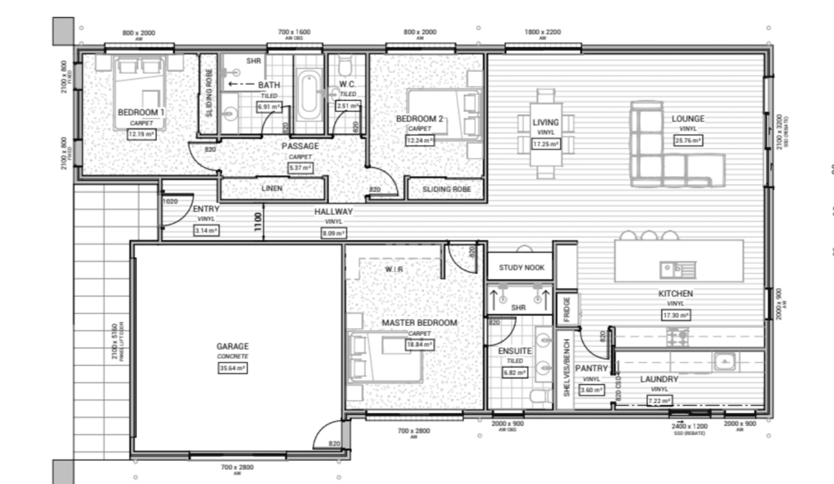
Total area 215m²

home builder ruby

Ruby offers something different with her bold facade and arched windows. Ruby features open plan living area, with a generous walk-in pantry and laundry space, and a large master bedroom with built in robe.The main hallway provides separation to the second and third bedrooms, and bathroom including separate toilet.

Choose the Ruby pre-priced plan at $520,000 with the inclusions below, or make Ruby your own by choosing your appliances, fittings and fixtures, colorbond roof and brick style and colour. Our selections booklet allows you to customise your dream home to suit your style.