206 – Lauriston

Lauriston is bright balanced and designed for everyday life

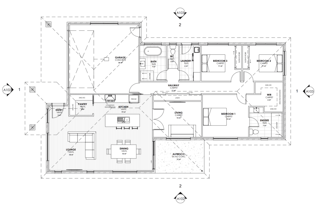
Total area 206m²

home builder lauriston

Our Lauriston design features two spacious living areas, three bedrooms (the master with a walk-in-robe and double vanity ensuite), a large kitchen with a walk-in pantry, a separate laundry, garage storage and an alfresco area for entertaining (or relaxing!).

As well as selecting all your fixtures and finishes, you can make it truly your own by selecting your colorbond roof colour, brick veneer colour and style and make it extra toasty in winter with double glazed windows and sliding doors.