206 – June $511,000

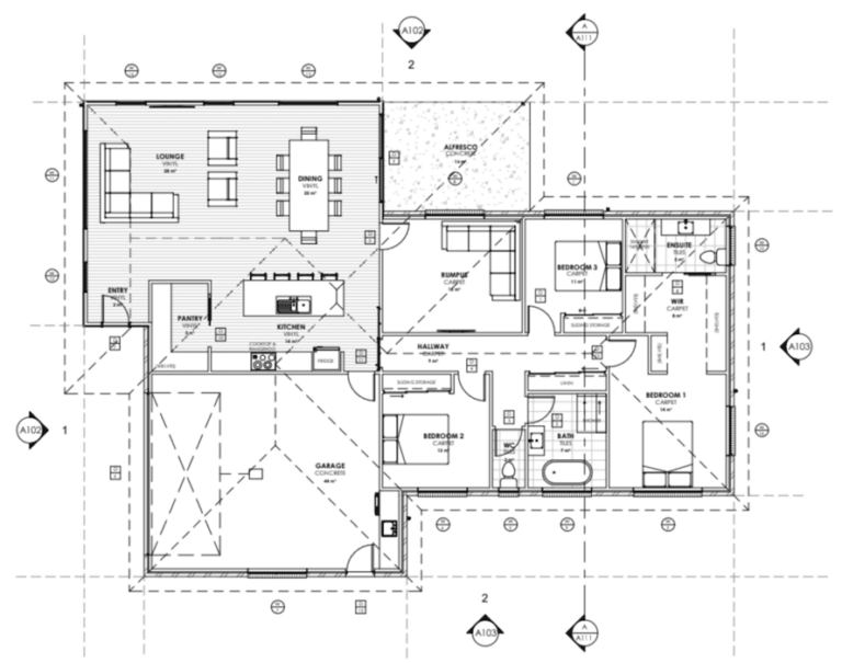
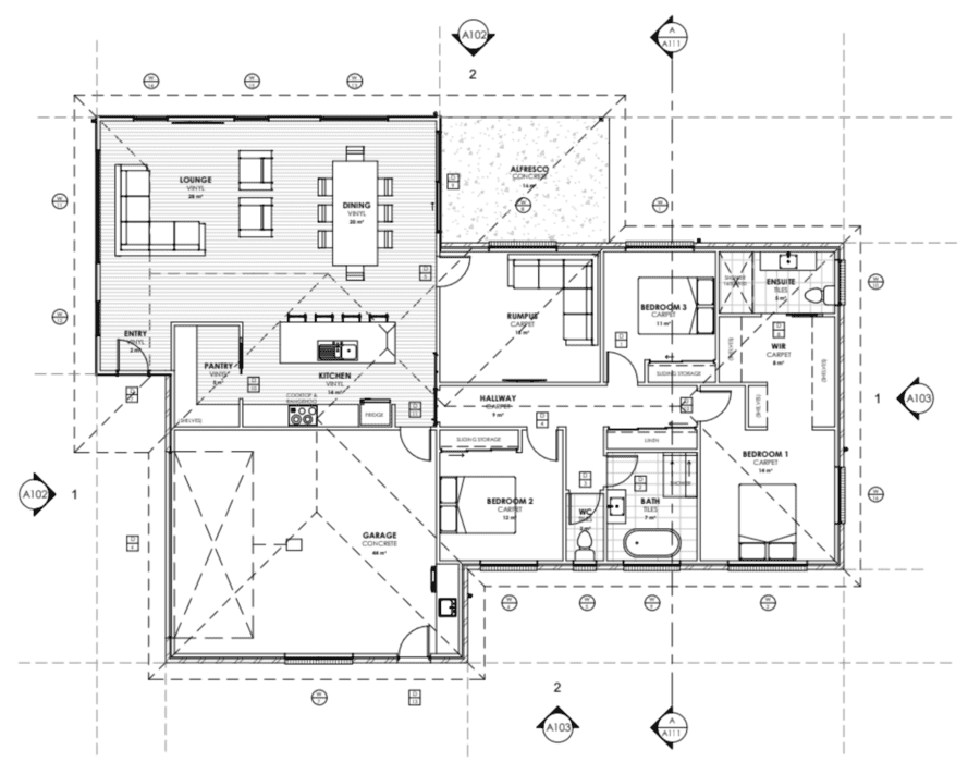
Generous frontage and flowing spaces throughout

Total area 206m²

home builder june

June’s generous and stunning frontage opens to an open plan living area, with a generous walk-in pantry and the option for extended living spaces with alfresco and second-living. The ensuite is hidden behind the walk-in robe but still has a window to allow natural light to flow. A separate toilet for the main bathroom saves those morning arguments, and each bedroom features built-in wardrobes.

Choose the June pre-priced plan at $511,000 with the inclusions below, or make June your own by choosing your appliances, fittings and fixtures, colorbond roof and brick style and colour. Our selections booklet allows you to customise your dream home to suit your style.