205 – Luttrell

Luttrell brings style space and connection together

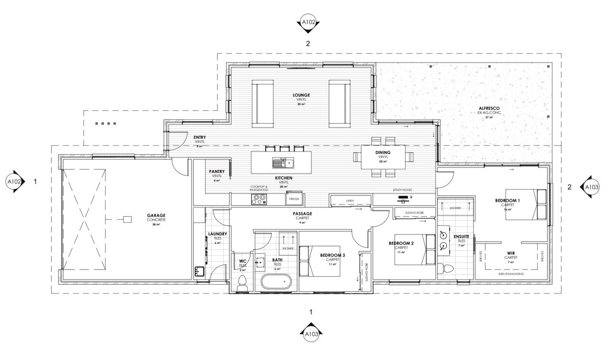
Total area 205m²

home builder luttrell

Designed for open plan living and ideal for entertainers, Luttrell features a large open kitchen and living area, with a large island bench and walk-in pantry, which leads to a spacious alfresco area (37m2). Boasting three bedrooms (the master with a walk-in-robe and double vanity ensuite), a study nook and a separate laundry, Luttrell is the ideal entertainer’s house.

As well as selecting all your fixtures and finishes, you can make it truly your own by selecting your colorbond roof colour, brick veneer colour and style and make it extra toasty in winter with double glazed windows and sliding doors.