202 – Mylan

Smart storage and flowing spaces at the heart of Mylan

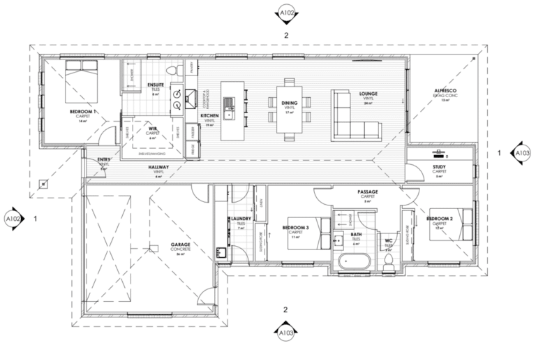
Total area 202m²

home builder mylan

Mylan features a spacious open plan living area, three bedrooms (the master with a walk-in-robe and double vanity ensuite), a large kitchen, a separate laundry, a separate study, garage storage and a large alfresco area for entertaining (or relaxing!).

As well as selecting all your fixtures and finishes, you can make it truly your own by selecting your colorbond roof colour, brick veneer colour and style and make it extra toasty in winter with double glazed windows and sliding doors.