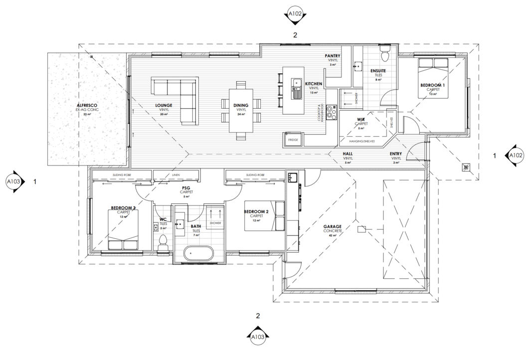
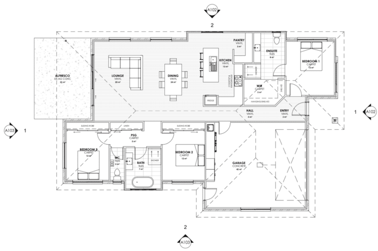
194 – Cameron

Generous kitchen space at the heart of Cameron

Total area 194m²

home builder cameron

Whether you’re an entertainer or love to cook, you’ll love the extra kitchen space that Cameron offers you; with ample bench space and a generous pantry (to hide the mess), Cameron will suit your cooking needs.

As well as offering three bedrooms, two bathrooms, an alfresco area and open plan living, this floorplan also features a linen cupboard and extra space in the garage for storage.

You can make it truly your own by selecting your colorbond roof colour, brick veneer colour and style and make it extra toasty in winter with double glazed windows and sliding doors.