192 – Sandwood $501,000

Sandwood brings space and style together

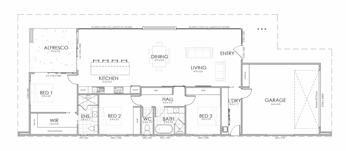
Total area 192m²

home builder sandwood

Sandwood offers an open plan living area, with a generous entry space and option to extend living outside to the alfresco. The master is a separated haven, and includes ensuite and walk-in robe. Two additional bedrooms with walk-in robes share the main bathroom, with a separate toilet to save those morning arguments.

Choose the Sandwood pre-priced plan at $501,000 with the inclusions below, or make Sandwood your own by choosing your appliances, fittings and fixtures, colorbond roof and brick style and colour. Our selections booklet allows you to customise your dream home to suit your style.