189 – Ridley $479,000

Light filled spaces designed for easy living

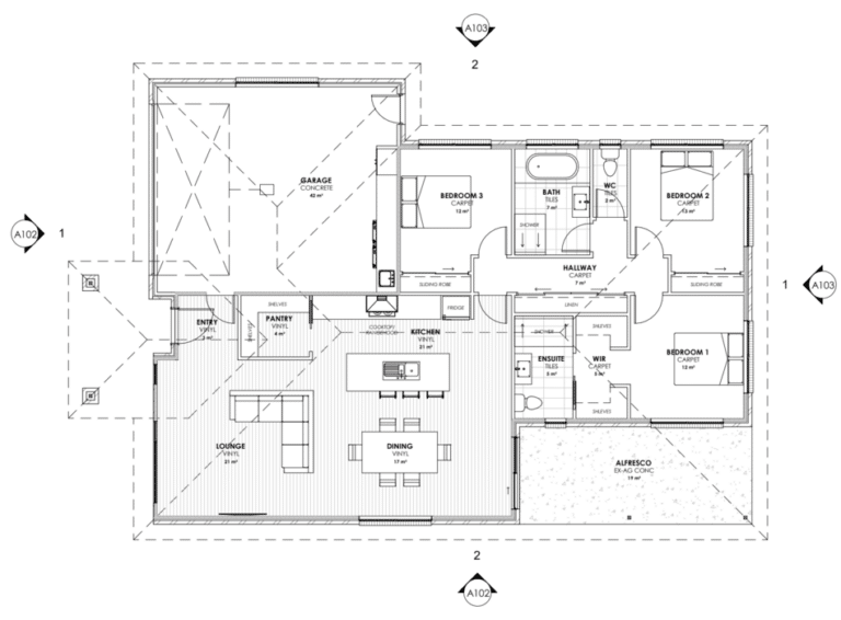
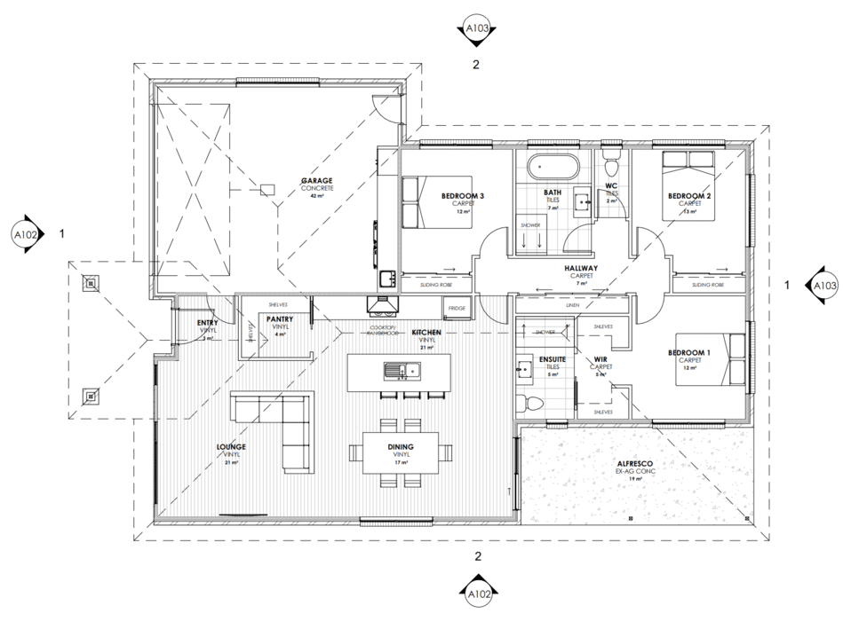
Total area 180m²

home builder ridley

With a similar layout to Hardy, Ridley offers an open plan living area, with a generous walk-in pantry and the option for extended outdoor entertainment.
The ensuite is hidden behind the walk-in robe but still has a window to allow natural light to flow. A separate toilet for the main bathroom saves those morning arguments, and each bedroom features built-in wardrobes.

Choose the Ridley pre-priced plan at $479,000 with the inclusions below, or make Ridley your own by choosing your appliances, fittings and fixtures, colorbond roof and brick style and colour. Our selections booklet allows you to customise your dream home to suit your style.