188 – Beachside $484,000

Practical design meets everyday comfort

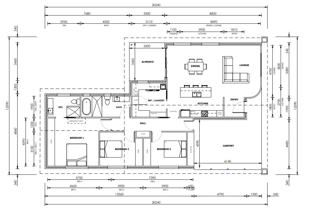
Total area 188m²

home builder beachside

Beachside offers an open plan living area, with a generous walk-in pantry and laundry, and extended living to alfresco area. The ensuite is tucked away, and a separate toilet for the main bathroom saves those morning arguments, and each bedroom features built-in wardrobes.

Choose the Beachside pre-priced plan at $484,000 with the inclusions below, or make Beachside your own by choosing your appliances, fittings and fixtures, colorbond roof and brick style and colour. Our selections booklet allows you to customise your dream home to suit your style.