180 – Dana $412,000

Experience the simplicity and comfort of Dana

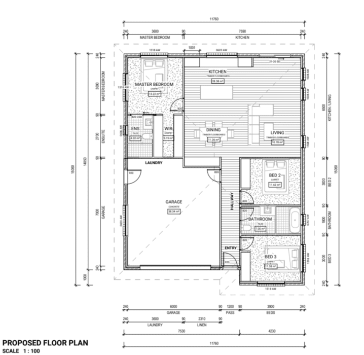
Total area 180m²

home builder dana

Dana offers modern simplicity with an open plan living area, a separate master suite and functional laundry space in garage.

Choose the Dana pre-priced plan at $412,000 with the inclusions below, or make Dana your own by choosing your appliances, fittings and fixtures, colorbond roof and brick style and colour. Our selections booklet allows you to customise your dream home to suit your style.