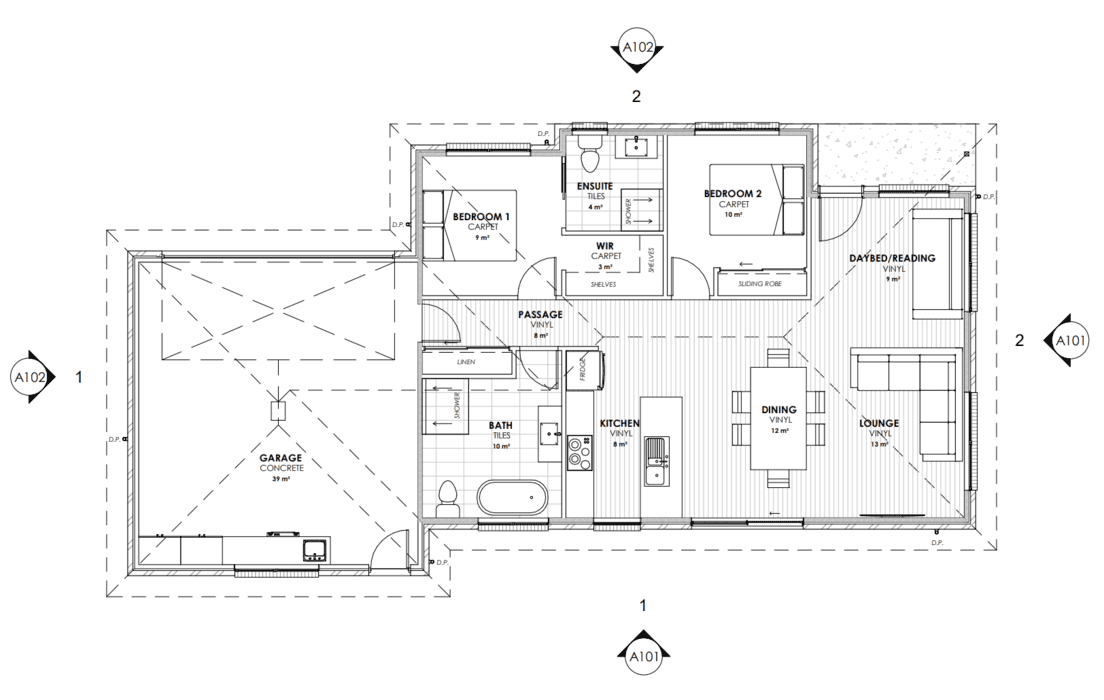
143 – Alexander

A compact design that feels spacious and inviting

Total area 143m²

home builder alexander

Ideal for first home builders looking to get into the property market or those looking to downsize now the kids have moved out! Alexander offers you two bedrooms, two bathrooms, a generous open living area, and a gallery kitchen.

Although only 143m2, Alexander’s open living floorplan makes for maximum comfort in a small space.